客服热线:400-000-9931
热门搜索:增资股权房地产
西安铁建景尚房地产开发有限公司49%股权及10290万元债权 发布时间: 2023-02-13
  • 9.jpg
项目性质:

国有

所在地区:

不限

交易金额:

10781.85万元

截至日期:

2023-03-03

剩余时间:

已过期

联系方式: 登录后查看联系方式

概要及推荐理由

推荐人:

冯文坡

标 签:

2022年 8月份,西安铁建景尚房地产开发有限公司以 10.5亿元摘得曲江大明宫板块井上片区 2宗共计 65.8亩住宅用地,楼面地价分别在9064元/㎡、9068元/㎡。西派城项目分为东西两个地块,其中东地块公示案名为西派城天华(39.463亩),西地块公示案名为西派城天麟(26.345亩)。该项目所处的板块,是目前曲江大明宫着力推进的井上城市更新片区,这个片区刚好处于地铁8号线、地铁10号线的交汇处。
项目简介 项目详情 受让条件

一、交易条件

转让底价10,781.8522万元,一次性支付,保证金1,078.19万元。

二、公司简介

企业名称:西安铁建景尚房地产开发有限公司

公司类型(经济性质):有限责任公司

注册地址:西安市曲江新区大明宫遗址区玄武路78号办公楼西区二层

法人代表:陈新兵

注册资金:2,000.00万元人民币

标的注册(单位)代码:91610133MA6WXA8X5

所属行业:房地产业

经营类型:国有独资企业(公司)/国有全资企业

职工人数(在职):8

经营范围:一般项目:物业管理;建筑装饰材料销售;金属材料销售;五金产品零售;机械电器设备销售;通信设备销售;信息咨询服务(不含许可类信息咨询服务);市场营销策划。(除依法须经批准的项目外,凭营业执照依法自主开展经营活动)许可项目:房地产开发经营。(依法须经批准的项目,经相关部门批准后方可开展经营活动,具体经营项目以审批结果为准)

 

三、土地开发项目

1、购地信息

2022年 8月份,西安铁建景尚房地产开发有限公司以 10.5亿元摘得曲江大明宫板块井上片区 2宗共计 65.8亩住宅用地,楼面地价分别在9064/㎡、9068/

1.jpg

西派城项目分为东西两个地块,其中东地块公示案名为西派城天华(39.463亩),西地块公示案名为西派城天麟(26.345亩)。

2、项目亮点

(1)交通优势

该项目所处的板块,是目前曲江大明宫着力推进的井上城市更新片区,这个片区刚好处于地铁8号线、地铁10号线的交汇处,因此该片区的规划是按照TOD模式建设。除了住宅之外,在该片区还有大量的商业规划,构建TOD模式下的新城市主义空间。

另外, 西派城天华周边还有已经通车的地铁3号线、地铁4号线,这意味着项目周边云集了4条地铁线路。

(2)商业配套

除了地铁之外,商业配套也是该区域的一个亮点。

除了已经开业的百寰国际、大明宫万达广场、大明宫中央广场外,世纪金花已经确定将会落户太华路立交东北角。另外,大明宫实业集团拟在太华路立交西南角打造包含商业、超高层、五星级酒店等为一体的大型商业项目。再加上地铁 8号线与 10号线交汇处 TOD模式规划的大量商业,未来这个片区将会云集多个大型商业项目。

2.jpg

从目前该片区的在售项目价格来看,龙湖星河紫云台、大明宫璞悦府刚需、刚改产品毛坯高层售价在 1.95万元 /㎡左右,高端项目大明宫金茂府的毛坯高层售价在 2.5万元 /㎡左右。作为高端产品的西派城天华入市后,售价预计可以参考大明宫金茂府的售价。

3、项目建设工程规划公示

(1)西派城天华项目建设工程规划公示(2022年10月28日)

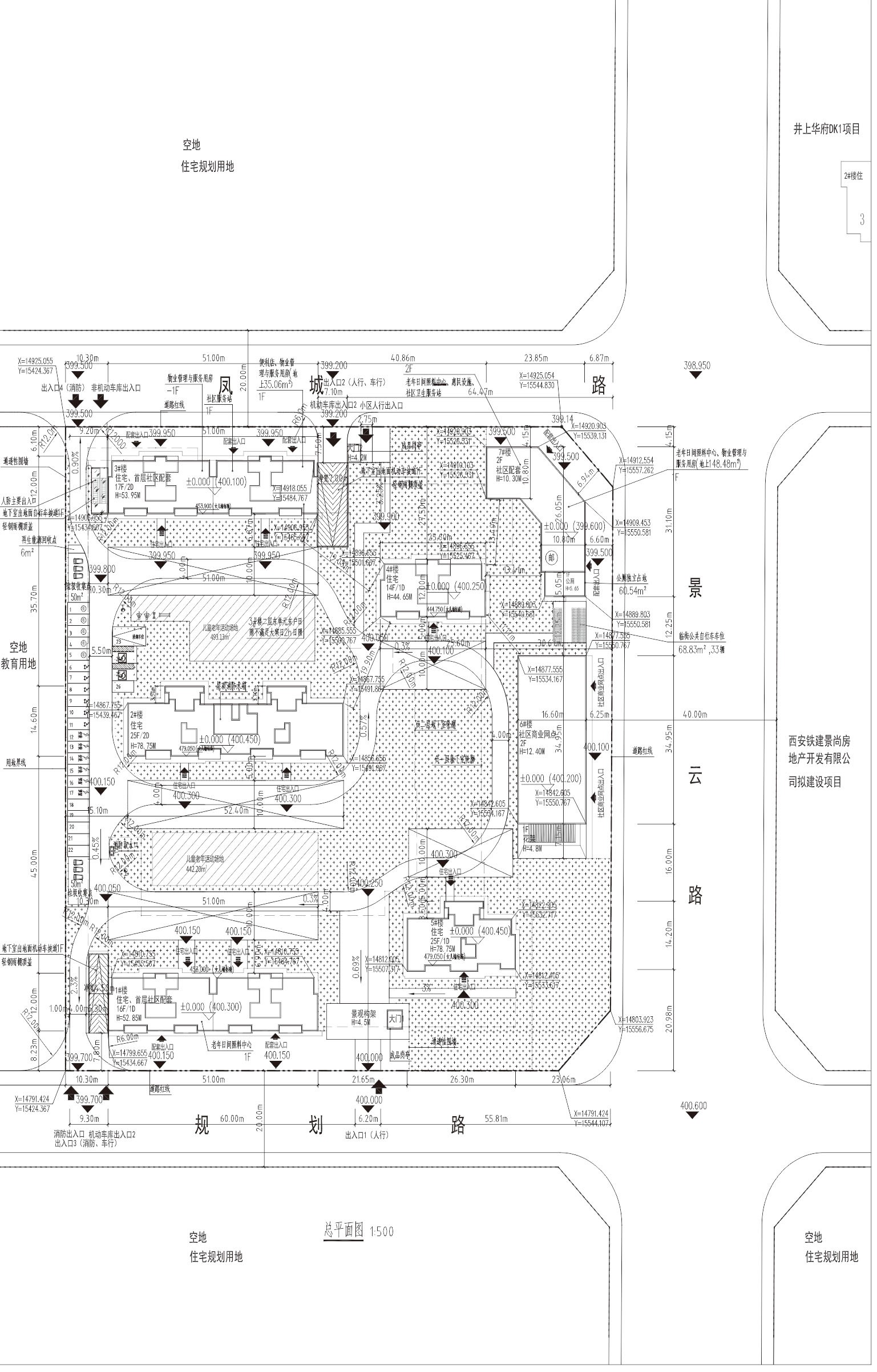
总平面图

3.jpg

经济技术指标

4.jpg

公示概况

西派城天华项目位于北二环路以北、凤城一路以南,御井路以西,景云路以东。该项目新建住宅楼柒幢;公服配套楼叁幢。该地块总建筑面积90991.77m,其中地上68402.45m,地下22589.32m。项目配建机动车停车位总数为699个(地上34个,地下665个),非机动车停车位749个(临街公共自行车位52个,地上非机动车位20个,地下设非机动车位209个)。

效果图

5.jpg

6.jpg

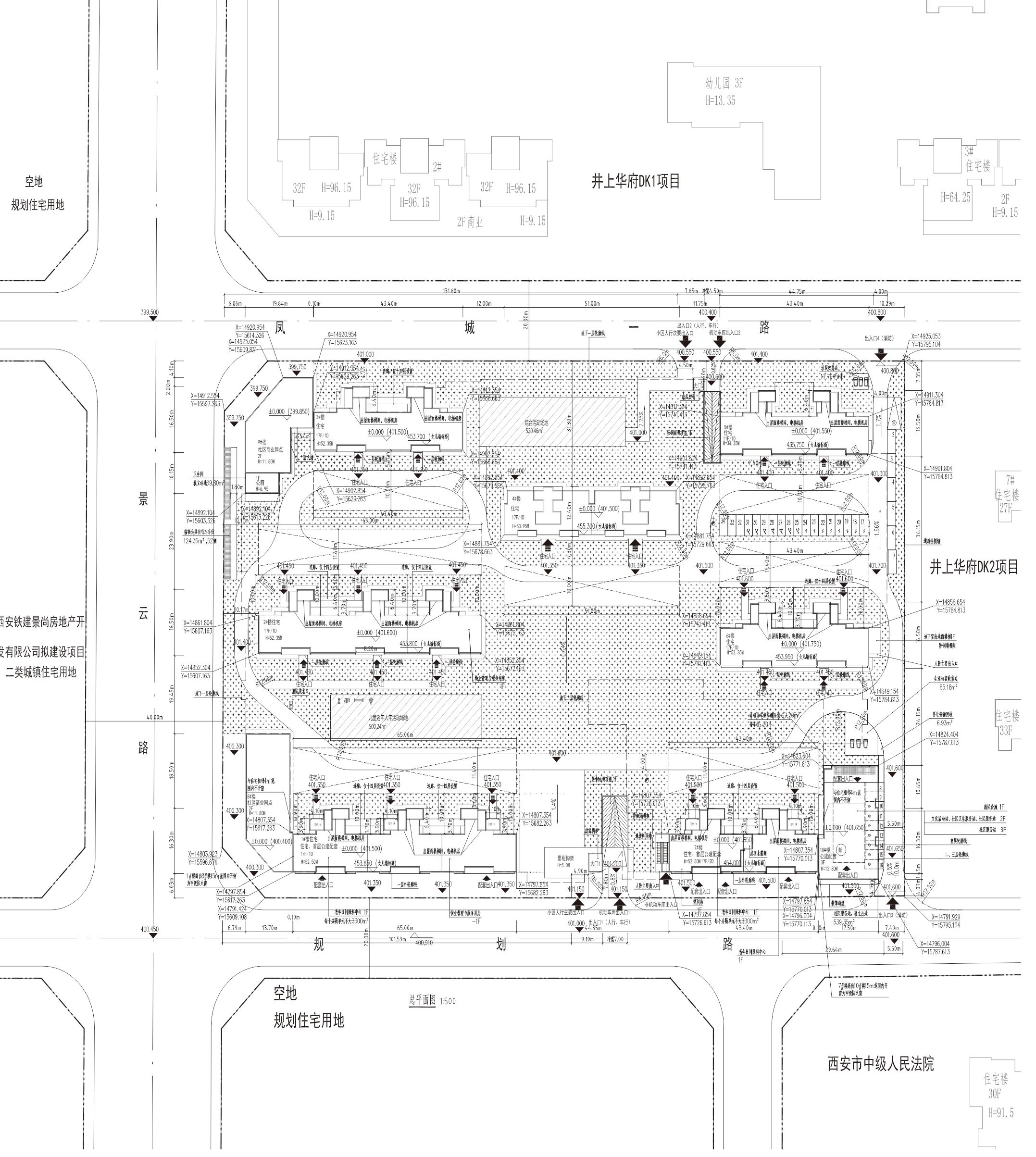
(2)西派城天麟项目建设工程规划公示(2022年10月31日)

总平面图

7.jpg

经济技术指标

8.jpg

四、财务状况

image.png

五、股权结构

image.png

六、重要信息披露

1、标的企业注册资本为人民币2000万元,实缴资本1000万元,意向受让方在取得股权后应履行注册资本金实缴义务。

2、根据西安曲江大明宫置业有限公司与中铁房地产集团华中有限公司签订的《股权质押合同》,西安曲江大明宫置业有限公司将其持有的标的企业49%股权质押给中铁房地产集团华中有限公司。此次转让行为已取得中铁房地产集团华中有限公司同意。

3、其他信息详情见备查资料。

交易方式: 股权转让
控制权: 全资或绝对控股
发展阶段: 初创期
转让/增资的股比: 100.00%

推荐项目

总评

0.0

综合评分

0.0

登录后查看名片信息

登录查看

服务热线

400-000-9931
周一到周五8:30-17:30

邮箱

service@369qyhl.com

平台优势

权威背景 真实有效 匹配精准 资源丰富 服务专业

关注权易汇服务号
精准项目匹配

关注权易汇订阅号
每日优选推荐
  京公网安备 11010502037635号  |  京ICP备18045501号  |  京ICP证B2-20190634号 © 2016-2025  北京权易互联网络有限公司 版权所有